Quadrilocale in vendita

Silea, Via friuli - Lanzago
€ 270.000
3 locali 3 locali
90 Mq 90 Mq
2 bagni 2 bagni

Quadrilocale in vendita

Silea, Via friuli - Lanzago

Descrizione annuncio

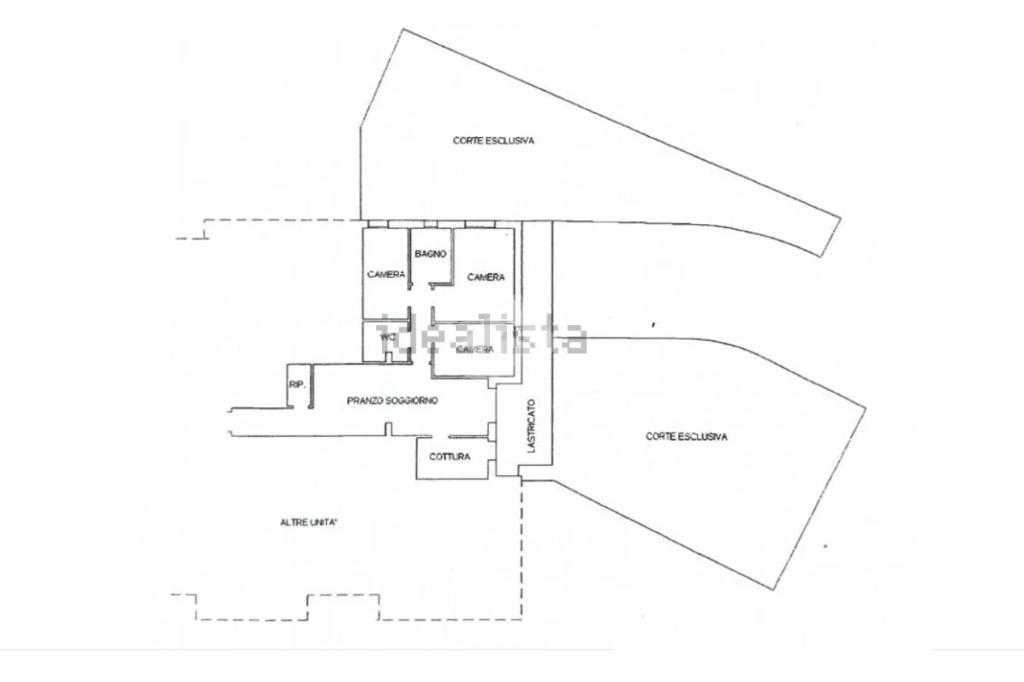
Lanzago, Silea: proponiamo in vendita elegante appartamento quadrilocale al piano terra con giardino privato, situato nella tranquilla e servita zona di Lanzago.

L’immobile, costruito nel 2005, si distingue per l’ingresso indipendente che conduce ad un’accogliente zona giorno composta da soggiorno e cucina separata. Un comodo disimpegno accompagna alla zona notte, dove troviamo tre camere da letto: una spaziosa matrimoniale, una camera doppia e una singola. Completano la proprietà due bagni, di cui uno finestrato con box doccia e un secondo bagno di servizio anch’esso dotato di box doccia.

Punto di forza dell’abitazione è il giardino privato di circa 150 mq, ideale per momenti di relax all’aperto o per famiglie con bambini e animali.

Esposizione SUD-EST.

A completare la soluzione troviamo un garage di circa 20 mq al piano interrato e un posto auto fuori terra di proprietà all’interno dell’area condominiale.

L’immobile presenta finiture curate: pavimentazione in piastrelle nella zona giorno e parquet nelle camere, serramenti interni in legno con doppio vetrocamera e scuri esterni in legno.

Posizione strategica, comoda a tutti i principali servizi: nel raggio di 300 metri sono facilmente raggiungibili supermercato, fermata dell’autobus, farmacia e scuole.

Soluzione ideale per chi cerca comfort, indipendenza e praticità in un contesto residenziale tranquillo.

L’indirizzo dell’immobile è totalmente indicativo per tutelare la privacy del cliente.

Per info su questo immobile contatta il n: 04221582409 o scrivi un e-mail all'indirizzo:

Mostra tutto

Nelle vicinanze

Trasporto pubblico Trasporto pubblico
Lanzago
Lanzago
250 m
Trasporto pubblico
670 m
Scuole Scuole
Scuole
380 m
Scuola Elementare A. Vivaldi
900 m
Scuola Media statale "Marco Polo"
910 m
FISM Treviso
1,8 Km
ENGIM Veneto SFP Turazza
1,9 Km
Farmacia Farmacia
Farmacia del Sile
320 m
Farmacia Internazionale
610 m
Farmacia Dodi
1,9 Km
Farmacia alla Fiera
2,1 Km
Farmacia Selvana
2,5 Km
Ospedali Ospedali
Ospedale Regionale "Ca'Foncello"
2,3 Km
Pronto Soccorso Ospedale "Ca' Foncello"
2,3 Km
Ospedale Ca' Foncello
2,6 Km
Supermercati Supermercati
Amico Bio
380 m
Alì
490 m
Cadoro
670 m
Lidl
1,2 Km
Centro Commerciale Emisfero
1,6 Km
Negozi Negozi
Linea Intimo
410 m
Panificio Conte
960 m
Manai
2,7 Km
Bar Bar
Bar Trattoria Postumia Di Rizzoni Bruno & C. Snc
450 m
B.square
480 m
Bar
700 m
Le Bricole
2,2 Km
Bar Ganassi
2,9 Km
Ristoranti Ristoranti
Pizzeria Spaghetteria Mare Chiaro
250 m
Pizzeria Trattoria Nuova Parigi
280 m
Trattoria ae Bae
340 m
Pizzeria Arcobaleno
460 m
Trattoria da Dino
560 m
Mostra tutto

Caratteristiche

Rif.:
61211807
Totale piani:
3
Box:
1
Posti auto:
1
Camere da letto:
3
Arredamento:
Assente
Mostra tutto
Prezzo Prezzo
€ 270.000
Rata mutuo Rata mutuo
€ 1.280 / mese
Spese annue Spese annue
€ 800
Proponi il tuo prezzoProponi il tuo prezzo

Classe Energetica

Questo immobile è esente da classe energetica
Anno di costruzione:
2005
Riscaldamento:
Autonomo
Tipo impianto:
A radiatori
Tipo alimentazione:
Metano

Ti interessa visionare l'immobile?

Fissa un appuntamento  Fissa un appuntamento

Richiedi informazioni

Clicca su Leggi per aprire l'informativa
* Questi campi sono obbligatori

Calcola il tuo mutuo

Semplice e senza impegno
Anticipo

( % )
Mutuo

( % )

pochi semplici passi

inserisci i tuoi dati
Questionario completato
Grazie per aver richiesto un appuntamento senza impegno con un nostro Consulente del Credito e Assicurativo.

Hai inserito correttamente tutti i dati necessari e a breve riceverai una e-mail con un link da convalidare per inviare i tuoi dati.
Affiliato
Immobiliare Undici Sas
Via Postumia Ovest, 249 31048 San Biagio Di Callalta (TV)
Via Postumia Ovest, 249 31048 San Biagio Di Callalta (TV)
Zona: San Biagio di Callalta-Silea
Mostra su mappa
Orari: Dal lunedì al venerdì: 9.00-12.30/14.30-19.00 Sabato: 9.00-14.00 Domenica: chiusura
Affiliato
Immobiliare Undici Sas
Via Postumia Ovest, 249 31048 San Biagio Di Callalta (TV)

2026 Tecnocasa Franchising S.p.A. - P. IVA 08365160152 - Via Monte Bianco 60/A 20089 Rozzano (MI). Ogni agenzia ha un proprio titolare ed è autonoma. Privacy policy | Policy utilizzo | Cookie policy