Villa singola in vendita

Ponte Di Piave, via L. Murinaldo
€ 340.000
8 locali 8 locali
383 Mq 383 Mq
4 bagni 4 bagni

Villa singola in vendita

Ponte Di Piave, via L. Murinaldo

Descrizione annuncio

Ponte di Piave: proponiamo un’elegante dimora d’altri tempi, dove ogni spazio racconta una storia.

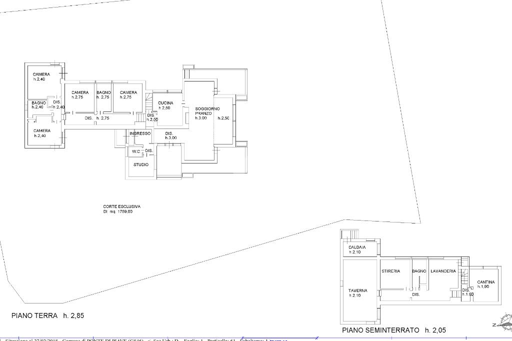
Immersa in una splendida corte esclusiva di 1.579 mq, questa affascinante villa indipendente di circa 380 mq, costruita negli anni ’50 e ampliata negli anni ’60, rappresenta una rara opportunità per chi sogna una residenza di carattere, a pochi passi dal cuore storico della città.

Varcando l’ingresso, si viene accolti da ambienti caldi e luminosi: uno studio riservato con bagno di servizio, un ampio soggiorno con camino, luogo perfetto per momenti di convivialità, e una sala da pranzo impreziosita da una grande vetrata che si affaccia sul verde e sulla piscina. La cucina abitabile, separata, completa con funzionalità la zona giorno.

Pochi gradini conducono alla zona notte, dove trovano spazio quattro spaziose camere matrimoniali e due bagni finestrati, pensati per garantire comfort e privacy a tutta la famiglia.

Al piano seminterrato, una suggestiva taverna con camino, stireria, lavanderia, bagno e locale caldaia offrono ambienti versatili da vivere in ogni stagione.

Il giardino, ricco di alberi di diverse specie ed età, regala un’atmosfera intima e rilassante: un’oasi privata dove il tempo sembra rallentare.

La villa si presenta in discreto stato di conservazione, con il fascino autentico delle finiture originali, oggi sempre più rare e ricercate.

Posizione strategica: a ridosso del centro storico, in un contesto servito da negozi, scuole, uffici e mezzi pubblici, con affacci verso edifici di pregio storico-artistico.

Potenziale investimento: grazie alla forma regolare del lotto e alla posizione privilegiata, l’immobile si presta anche a un importante sviluppo immobiliare, con la possibilità di realizzare quattro o cinque ville a schiera oppure un complesso residenziale di più unità.

Mostra tutto

Nelle vicinanze

Trasporto pubblico Trasporto pubblico
Ponte di Piave
Ponte di Piave
510 m
Fagarè
Fagarè
2,3 Km
Trasporto pubblico
30 m
Fagarè posta
Fagarè posta
2,1 Km
Ricariche auto elettriche Ricariche auto elettriche
Confartigianato Ponte di Piave
20 m
Scuole Scuole
Scuola Media Statale Ippolito Nievo
230 m
Scuole
270 m
Uffici Istituto Comprensivo Statale di Salgareda
2,6 Km
Istituto Comprensivo Statale di Salgareda
2,7 Km
Scuola Primaria Fagarè
2,8 Km
Farmacia Farmacia
Farmacia Medicatrix
210 m
Farmacia Postumia
1,8 Km
Farmacia Zanette
2,6 Km
Rossi Sirena
3,0 Km
Supermercati Supermercati
Eurospar
480 m
Aliper
520 m
Visotto
990 m
Maxim
2,5 Km
Negozi Negozi
Panificio Pasticceria Floreno
140 m
Panificio Moreno
420 m
Panificio pasticceria Floreno S.n.c.
440 m
Negozi
2,5 Km
Bar Bar
Bar Municipio
80 m
Intermezzo
160 m
Bar
170 m
Bar Machita
190 m
Bar Osteria Allo Spuntino
290 m
Ristoranti Ristoranti
Pizza Planet
90 m
Mangia Pizza
120 m
Osteria Torre Morosini
190 m
Pizzeria Costa Azzurra
340 m
Pizzeria Plavis
350 m
Mostra tutto

Caratteristiche

Rif.:
61150613
Piano:
2 di 2 (Piano su più livelli)
Camere da letto:
4
Arredamento:
Parziale
Condizionamento:
Autonomo
Ascensore:
No
Mostra tutto
Prezzo Prezzo
€ 340.000
Rata mutuo Rata mutuo
€ 1.615 / mese
Spese annue Spese annue
€ 0
Proponi il tuo prezzoProponi il tuo prezzo

Classe Energetica

G
G
G
G
G
G
G
G
G
EP globale non rinnovabile:
286.59 kW h/m² anno
EP globale rinnovabile:
1.16 kW h/m² anno
EP invernale del fabbricato:
EP estiva del fabbricato:
Anno di costruzione:
1953
Riscaldamento:
Autonomo
Tipo impianto:
A radiatori
Tipo alimentazione:
Metano

Ti interessa visionare l'immobile?

Fissa un appuntamento  Fissa un appuntamento

Richiedi informazioni

Clicca su Leggi per aprire l'informativa
* Questi campi sono obbligatori

Calcola il tuo mutuo

Semplice e senza impegno
Anticipo

( % )
Mutuo

( % )

pochi semplici passi

inserisci i tuoi dati
Questionario completato
Grazie per aver richiesto un appuntamento senza impegno con un nostro Consulente del Credito e Assicurativo.

Hai inserito correttamente tutti i dati necessari e a breve riceverai una e-mail con un link da convalidare per inviare i tuoi dati.
Affiliato
Immobiliare Undici Sas
Via Postumia Ovest, 249 31048 San Biagio Di Callalta (TV)
Via Postumia Ovest, 249 31048 San Biagio Di Callalta (TV)
Zona: San Biagio di Callalta-Silea
Mostra su mappa
Orari: Dal lunedì al venerdì: 9.00-12.30/14.30-19.00 Sabato: 9.00-14.00 Domenica: chiusura
Affiliato
Immobiliare Undici Sas
Via Postumia Ovest, 249 31048 San Biagio Di Callalta (TV)

2026 Tecnocasa Franchising S.p.A. - P. IVA 08365160152 - Via Monte Bianco 60/A 20089 Rozzano (MI). Ogni agenzia ha un proprio titolare ed è autonoma. Privacy policy | Policy utilizzo | Cookie policy