Quadrilocale in vendita

Ponte Di Piave, via Roma
€ 158.000
Prezzo aggiornato
4 locali 4 locali
90 Mq 90 Mq
1 bagno 1 bagno

Quadrilocale in vendita

Ponte Di Piave, via Roma

Descrizione annuncio

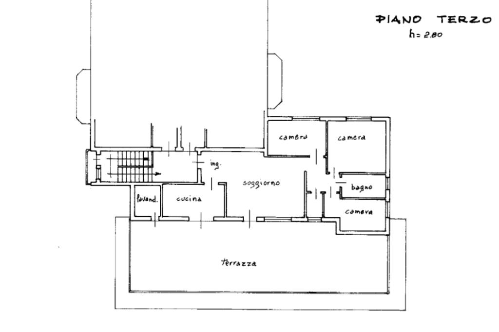
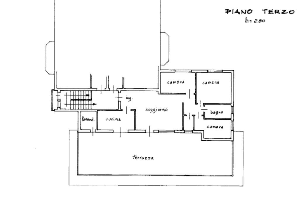
Ponte di Piave: proponiamo in esclusiva ampio appartamento quadrilocale situato al terzo ed ultimo piano di una palazzina edificata alla fine degli anni ’60, in zona centralissima e comoda a tutti i servizi principali, raggiungibili a piedi.

L’immobile si distingue per le metrature generose e per il terrazzo abitabile di circa 100 mq, un vero valore aggiunto per chi desidera spazi esterni vivibili.

L’ingresso, ampio e accogliente, conduce alla cucina abitabile con primo accesso al terrazzo. A seguire troviamo il salotto, anch’esso caratterizzato da spazi importanti e dotato di un secondo accesso al terrazzo.

Attraverso un comodo disimpegno si accede alla zona notte composta da:

camera matrimoniale,

due camere singole,

bagno finestrato con box doccia, ristrutturato circa 10 anni fa.

L’appartamento dispone di riscaldamento autonomo a radiatori con caldaia del 2022 e impianto di climatizzazione autonomo tramite pompa di calore installata 3 anni fa. Gli infissi sono in legno con vetrocamera degli anni ’90.

La pavimentazione dell’immobile è in marmo su tutta la superficie, fatta eccezione delle camere dov’è in PVC ed in bagno piastrellata.

Dal grande terrazzo si accede inoltre a un pratico locale lavanderia.

A completare la proprietà, ampio magazzino/garage di ben 59 mq, ideale per più auto o per chi necessita di spaziosi ambienti di deposito e cantina di pertinenza di circa 5 mq.

L’indirizzo dell’immobile è totalmente indicativo per tutelare la privacy del cliente.

Per info su questo immobile contatta il n: 04221582409 o scrivi un e-mail all'indirizzo:

Mostra tutto

Nelle vicinanze

Trasporto pubblico Trasporto pubblico
Ponte di Piave
Ponte di Piave
400 m
Fagarè
Fagarè
2,3 Km
Trasporto pubblico
80 m
Fagarè posta
Fagarè posta
2,1 Km
Ricariche auto elettriche Ricariche auto elettriche
Confartigianato Ponte di Piave
140 m
Scuole Scuole
Scuole
170 m
Scuola Media Statale Ippolito Nievo
170 m
Uffici Istituto Comprensivo Statale di Salgareda
2,7 Km
Scuola Primaria Fagarè
2,8 Km
Istituto Comprensivo Statale di Salgareda
2,8 Km
Farmacia Farmacia
Farmacia Medicatrix
170 m
Farmacia Postumia
1,7 Km
Farmacia Zanette
2,7 Km
Rossi Sirena
2,9 Km
Supermercati Supermercati
Aliper
410 m
Eurospar
580 m
Visotto
890 m
Maxim
2,6 Km
Negozi Negozi
Panificio Pasticceria Floreno
30 m
Panificio Moreno
510 m
Panificio pasticceria Floreno S.n.c.
530 m
Negozi
2,6 Km
Bar Bar
Bar
60 m
Bar Machita
90 m
Bar Municipio
100 m
Intermezzo
190 m
Bar Ai Bocconi
220 m
Ristoranti Ristoranti
Mangia Pizza
90 m
Pizza Planet
170 m
Pizzeria Costa Azzurra
250 m
Pizzeria Plavis
250 m
Osteria Torre Morosini
280 m
Mostra tutto

Caratteristiche

Rif.:
61165097
Piano:
3 di 3 (Piano alto)
Box:
1
Terrazzi:
1
Camere da letto:
3
Arredamento:
Parziale
Mostra tutto
Prezzo Prezzo
€ 158.000
Rata mutuo Rata mutuo
€ 744 / mese
Spese annue Spese annue
€ 1.100
Proponi il tuo prezzoProponi il tuo prezzo

Classe Energetica

F
F
F
F
F
F
F
F
F
EP globale non rinnovabile:
242.56 kW h/m² anno
EP globale rinnovabile:
4.10 kW h/m² anno
EP invernale del fabbricato:
EP estiva del fabbricato:
Anno di costruzione:
1960
Riscaldamento:
Autonomo
Tipo impianto:
A radiatori
Tipo alimentazione:
Metano

Prezzo ridotto di €1 (4%%)

Ti interessa visionare l'immobile?

Fissa un appuntamento  Fissa un appuntamento

Richiedi informazioni

Clicca su Leggi per aprire l'informativa
* Questi campi sono obbligatori

Calcola il tuo mutuo

Semplice e senza impegno
Anticipo

( % )
Mutuo

( % )

pochi semplici passi

inserisci i tuoi dati
Questionario completato
Grazie per aver richiesto un appuntamento senza impegno con un nostro Consulente del Credito e Assicurativo.

Hai inserito correttamente tutti i dati necessari e a breve riceverai una e-mail con un link da convalidare per inviare i tuoi dati.
Affiliato
Immobiliare Undici Sas
Via Postumia Ovest, 249 31048 San Biagio Di Callalta (TV)
Via Postumia Ovest, 249 31048 San Biagio Di Callalta (TV)
Zona: San Biagio di Callalta-Silea
Mostra su mappa
Orari: Dal lunedì al venerdì: 9.00-12.30/14.30-19.00 Sabato: 9.00-14.00 Domenica: chiusura
Affiliato
Immobiliare Undici Sas
Via Postumia Ovest, 249 31048 San Biagio Di Callalta (TV)

2026 Tecnocasa Franchising S.p.A. - P. IVA 08365160152 - Via Monte Bianco 60/A 20089 Rozzano (MI). Ogni agenzia ha un proprio titolare ed è autonoma. Privacy policy | Policy utilizzo | Cookie policy